logoECOINSTEC

 

logo  logo   logo
EMPRESA SERVICIOS PROYECTOS CLIENTES CONTACTO
   

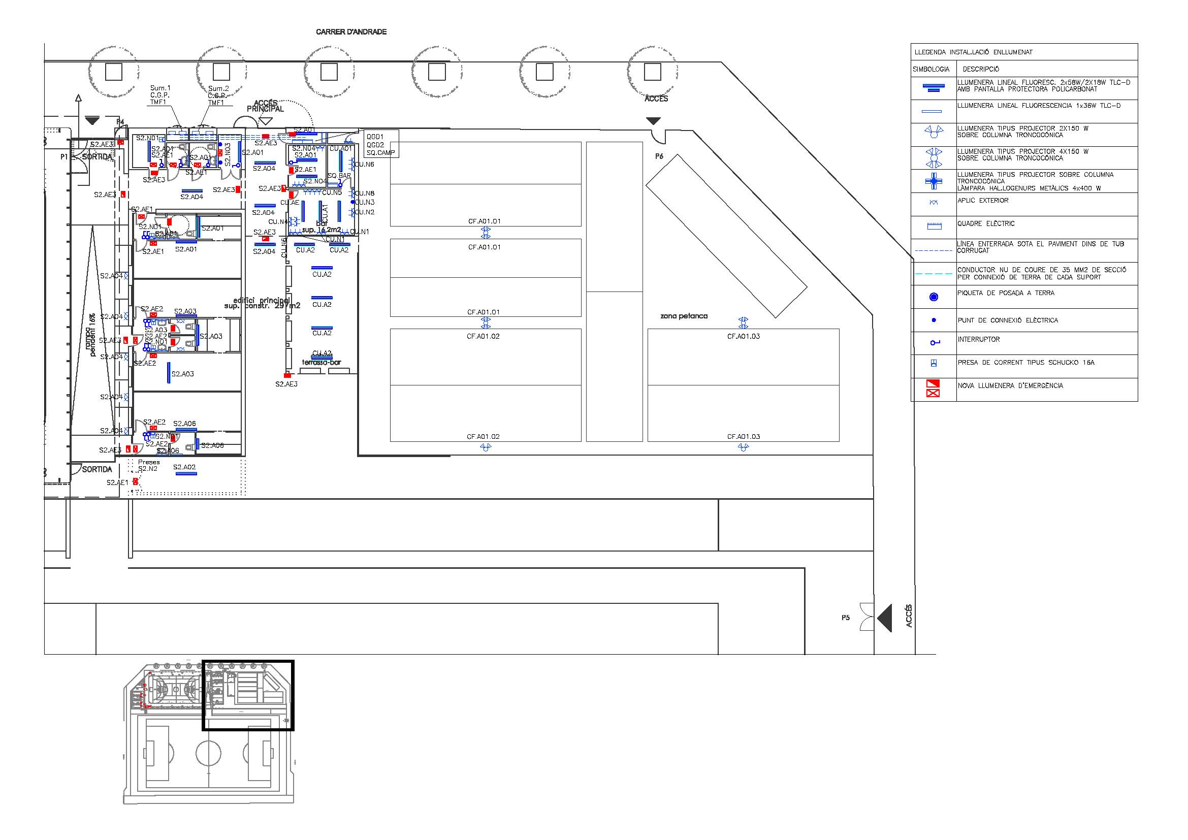
Complejo Deportivo Clot La Mel

 
Actuación:
Reforma - Proyecto ejecutivo y legalización
eléctrica.
 
Superficie:
8.752 m2
 
Cliente:
Ayuntamiento de Barcelona.
 
Ubicación:
C/ Andrade
Barcelona
 
Año:
2012-2013
 
 
       
    Anterior Siguiente<

 

 

 

Ecoinstec © 2013