logoECOINSTEC

 

logo  logo   logo
EMPRESA SERVICIOS PROYECTOS CLIENTES CONTACTO
   

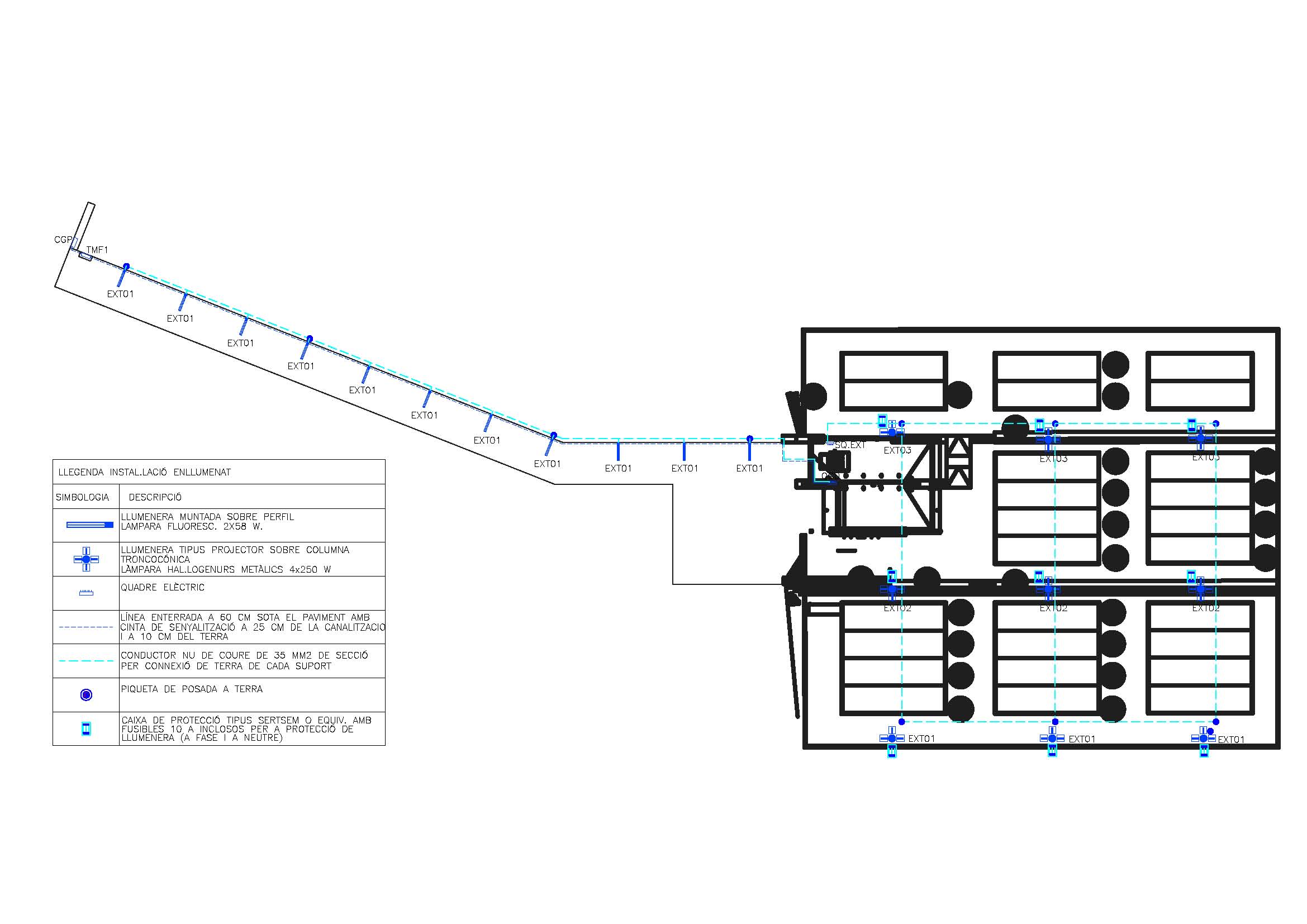
Club de Petanca Cova Solera en Rubí

 
Actuación:
Nueva Planta - Legalización instalación eléctrica
 
 
Superficie:
4.088 m2
 
Cliente:
Ayuntamiento de Rubí.
 
Ubicación:
Avda/ Cova Solera
Rubí. Barcelona
 
Año:
2012
 
 
       
    Anterior Siguiente<

 

 

 

Ecoinstec © 2013